Free account required
10
Free account required
$0.01 Rent
Listed 288 days ago
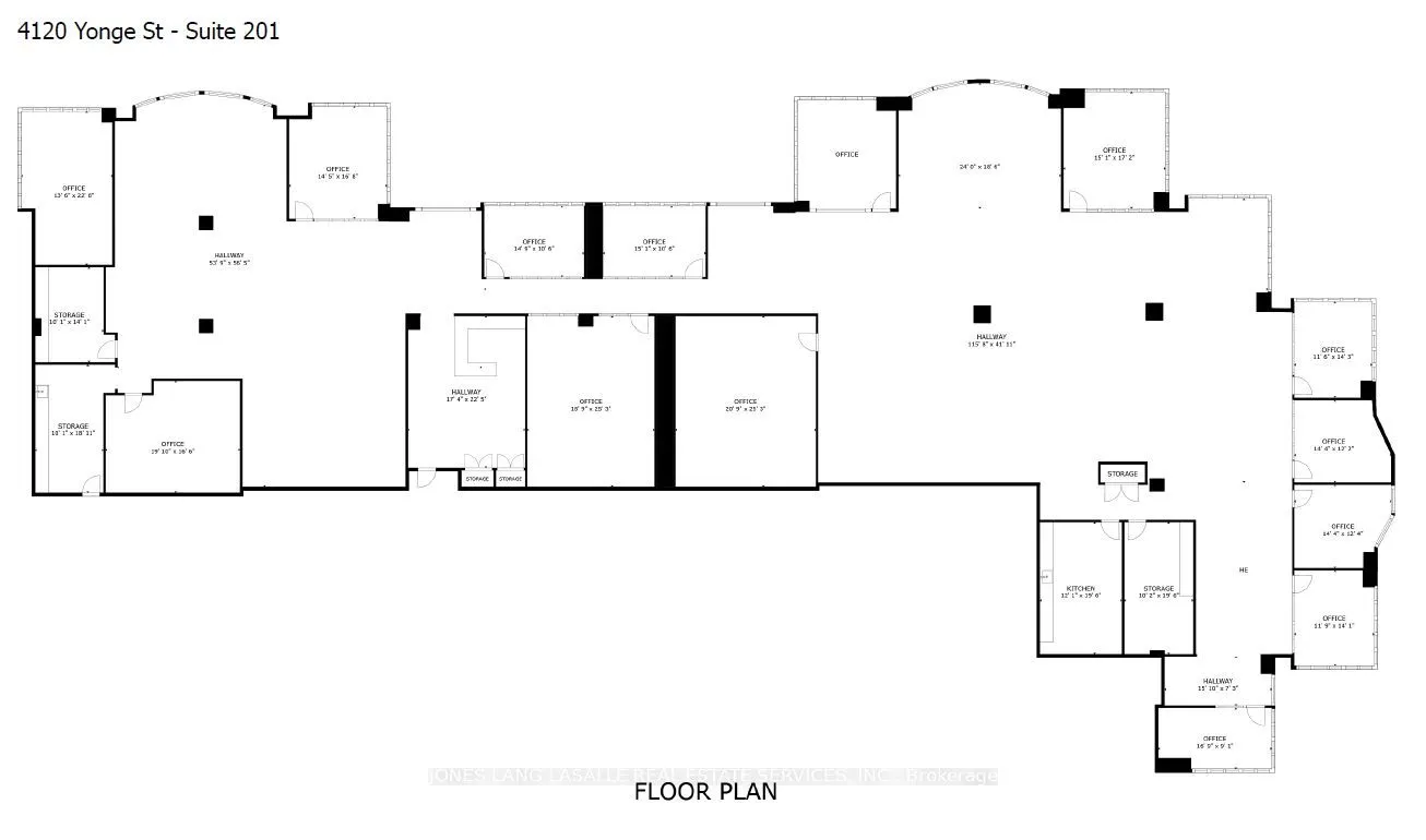
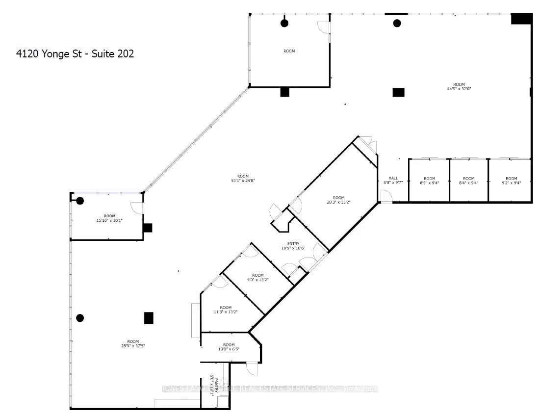
4120 Yonge Street, #201/202
· 0
· 0
· -
· -
Listing History
Buy/Sell/Terminated/Expired listing history for 4120 Yonge Street, #201/202
Key Facts
Key facts for 4120 Yonge Street, #201/202
Property Type
Commercial
Parking
Underground
MLS #
C11896496
Size
-
Basement
-
Listed on
2024-12-16
Lot size
0 x 0.0
Tax
$25.20 /yr
Days on Market
291
Approximate Age
-
Maintenance Fee
-
Description
Cost effective Class "A" sublease opportunity. Built out with offices, meeting rooms and kitchen. Ravine views. Term until May 30, 2030.
Similar Properties (No results)
Courtesy of: JONES LANG LASALLE REAL ESTATE SERVICES, INC.