Free account required
7
Free account required
$0.01 Rent
Listed 288 days ago
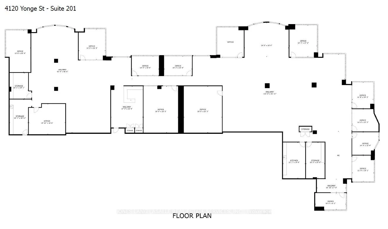
4120 Yonge Street, #201
· 0
· 0
· -
· -
Listing History
Buy/Sell/Terminated/Expired listing history for 4120 Yonge Street, #201
Key Facts
Key facts for 4120 Yonge Street, #201
Property Type
Commercial
Parking
Underground
MLS #
C11896492
Size
-
Basement
-
Listed on
2024-12-16
Lot size
0 x 0.0
Tax
$25.20 /yr
Days on Market
291
Approximate Age
-
Maintenance Fee
-
Description
Cost effective Class "A" sublease opportunity.Built out with offices, meeting rooms and kitchen. Ravine views.Term until May 30, 2030. Can be combined with Suite 202 (5,630 SF) for 17,673 SF.
Similar Properties (No results)
Courtesy of: JONES LANG LASALLE REAL ESTATE SERVICES, INC.